Pontweg /, 9450 HAALTERT
Beschrijving
HAALTERT - LOT 3
Wij bieden dit mooi perceel bouwgrond van 436 m² aan in Haaltert, bestemd voor een gesloten bebouwing.
Als toekomstige eigenaar geniet je van:
- Volledige inspraak in de bouwstijl, materiaalkeuze en afwerking, binnen de geldende bouwvoorschriften.
- Duurzame materialen voor een hoogwaardige afwerking van de woning. Wij voorzien standaard een lucht-water warmtepomp en vloerverwarming.
- Samenwerking bij het ontwerp van jouw woning, volledig afgestemd op jouw budget.
Maak van deze nog te bouwen woning jouw nieuwe thuis!
Neem vandaag nog contact op met Dries via 0497 92 15 24 of Dries@Immosafe.be
Prijs: € 411.696
Nog te bouwen woning
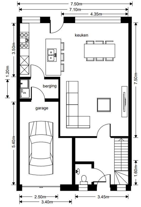
3Slp.
165 m2Contacteer ons
Algemeen
Prijs
€ 411.696
Aantal slaapkamers
3
Aantal badkamers
1
Adres
Pontweg /, 9450 HAALTERT
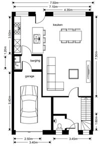
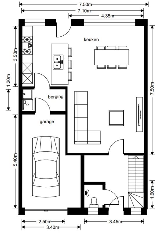
Bewoonbare opp.
165 m²
Grondoppervlakte
436 m²
Voorgevel
7,5 m
Financiële Info
Prijs
€ 411.696
Energie certificaat
EPC
Niet van toepassing
Comfort
Verwarming
Vloerverwarming
Keuken
Alle comfort
Beglazing
Driedubbel
Raamkozijn
pvc
Ruimtelijke ordening
Voorkooprecht
Nee
Bouwvergunning verkregen
Ja
Dagvaarding en herstelvordering
Niet van toepassing
Verkavelingsvergunning
Ja
Bestemming
Woongebied met landelijk karakter
P-score
Klasse A
Afgebakend overstromingsgebied
Nee
Risicozone voor overstromingen
Nee
Overstromingsgevoelig
Nee
Erfgoed
Nee




