Waterkant 18/12, 2840 Rumst
Beschrijving
Recent 1-slaapkamerappartement met frontaal zicht op de Rupel parkeerplaats inbegrepen
Huurprijs van 950 e is inclusief syndicale kost! Geen extra!
Beschikbaar vanaf 01/05/26
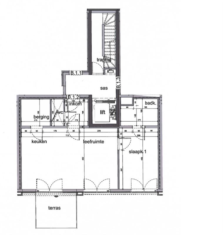
De Waterkant is recent en stijlvol afgewerkt met een bewoonbare oppervlakte van ca. 72 m2. Het appartement geniet van een prachtig frontaal zicht op de Rupel en het omliggende natuurgebied.
De lichtrijke leefruimte met grote raampartijen tot op de vloer biedt een aangename lichtinval en geeft rechtstreeks toegang tot het zuidoostgericht terras van 7 m2 met glazen balustrade en mooi zicht op het water.
De open, volledig uitgeruste keuken beschikt over een kookplaat, afzuigkap, vaatwasser en koelkast met vriesvak. Aansluitend bevindt zich een ruime berging met aansluiting voor wasmachine en droogkast.
Verder omvat het appartement een ruime slaapkamer met grote raampartij. De badkamer is voorzien van een lavabo met meubel en spiegelkast, evenals een douche met mengkraan. In de inkomhal bevindt zich een apart gastentoilet met handenwasser en hangtoilet. In alle ruimtes zijn aansluitingen voorzien voor kabel en internet.
Extra troef is de inbegrepen privatieve parkeerplaats en afgesloten fietsberging.
Residentie De Waterkant staat voor comfortabel wonen met een hoge afwerkingsgraad, rustig gelegen vlak bij de Rupeldijk met tal van wandel- en fietsroutes. Bovendien geniet u van een vlotte verbinding naar de E19 en A12.
Een ideale woonst voor wie rust, uitzicht en bereikbaarheid wil combineren.
1Slp.
72 m2












